Bavimo se kompletnom adaptacijom, renovacijom i dizajnom interijera s naglaskom na preciznu pripremu, pravilnu organizaciju i tehnički ispravnu izvedbu. Naš pristup temelji se na jasnoj strukturi procesa: od početne izmjere i idejnog rješenja, preko troškovnika i planiranja faza radova, do cjelokupne realizacije i završne kontrole.
U svakom projektu vodimo računa o funkcionalnosti prostora, usklađenosti s građevinskim i instalacijskim uvjetima te kvaliteti izvedbe završnih detalja. Radimo sustavno i dokumentirano, uz koordinaciju svih izvođača i nadzor nad rokovima i proračunom. Cilj nam je osigurati uredan proces bez improvizacije te prostor koji je tehnički ispravan, logično organiziran i dugoročno održiv.
Kompletan proces od planiranja do realizacije

Izvodimo kompletne građevinske i instalacijske radove, uključujući uklanjanje i izradu pregradnih zidova, obradu podova, stropova i zidnih površina. Provodimo vodovodne, elektro i sanitarne instalacije te završne radove poput bojanja, postave podnih obloga i završnih montaža. Proces koordiniramo od pripreme do finalne izvedbe.

Naša usluga dizajna interijera uključuje izradu idejnog i izvedbenog projekta kao cjelovitog rješenja prostora. Proces obuhvaća izmjeru, razvoj tlocrta, odabir materijala, boja i stilskih smjerova te izradu 3D vizualizacija. Cilj je stvoriti funkcionalan i estetski usklađen prostor prilagođen potrebama i načinu korištenja.

Usluga obuhvaća izlazak na teren, izmjeru i analizu prostora te izradu idejnog tlocrta u skladu s funkcionalnim potrebama i konstrukcijskim mogućnostima objekta. Na temelju prikupljene dokumentacije i izmjere izrađujemo detaljan troškovnik s jasnim pregledom svih stavki radova i mogućnošću fazne izvedbe. Cilj je precizno planiranje zahvata i transparentan uvid u očekivane troškove prije početka radova.
Adaptacija stana složen je proces koji zahtijeva kvalitetno planiranje, dobru organizaciju radova i jasnu komunikaciju između investitora i izvođača. Naš tim pristupa svakom projektu individualno – od početne ideje do završne obrade – uz stalnu koordinaciju i stručno izvođenje svih faza radova na objektu.
Bilo da se radi o djelomičnoj adaptaciji ili potpunom renoviranju stana, kuće ili poslovnog prostora, osiguravamo pouzdanu izvedbu i kontrolu kvalitete u svakoj etapi.
rušenje postojećih pregradnih zidova
izgradnju novih zidova od opeke ili knauf sustava
uklanjanje starih obloga zidova, podova i stropova
obijanje dotrajale žbuke te dijelova poda i stropa
izvedbu kompletnih instalacija unutar objekta (voda, kanalizacija, električne instalacije)
hidroizolacijske radove
termoizolaciju fasade
obradu špaleta oko prozora i vrata
ugradnju i uređenje stolarije
unutarnje i vanjske prozorske klupice
izradu obloga zidova, podova i stropova
žbukanje i gletanje
bojanje zidova i stropova
demontažu i montažu sanitarne opreme
demontažu i montažu elektro opreme
ugradnju unutarnjih vrata
završnu obradu svih detalja
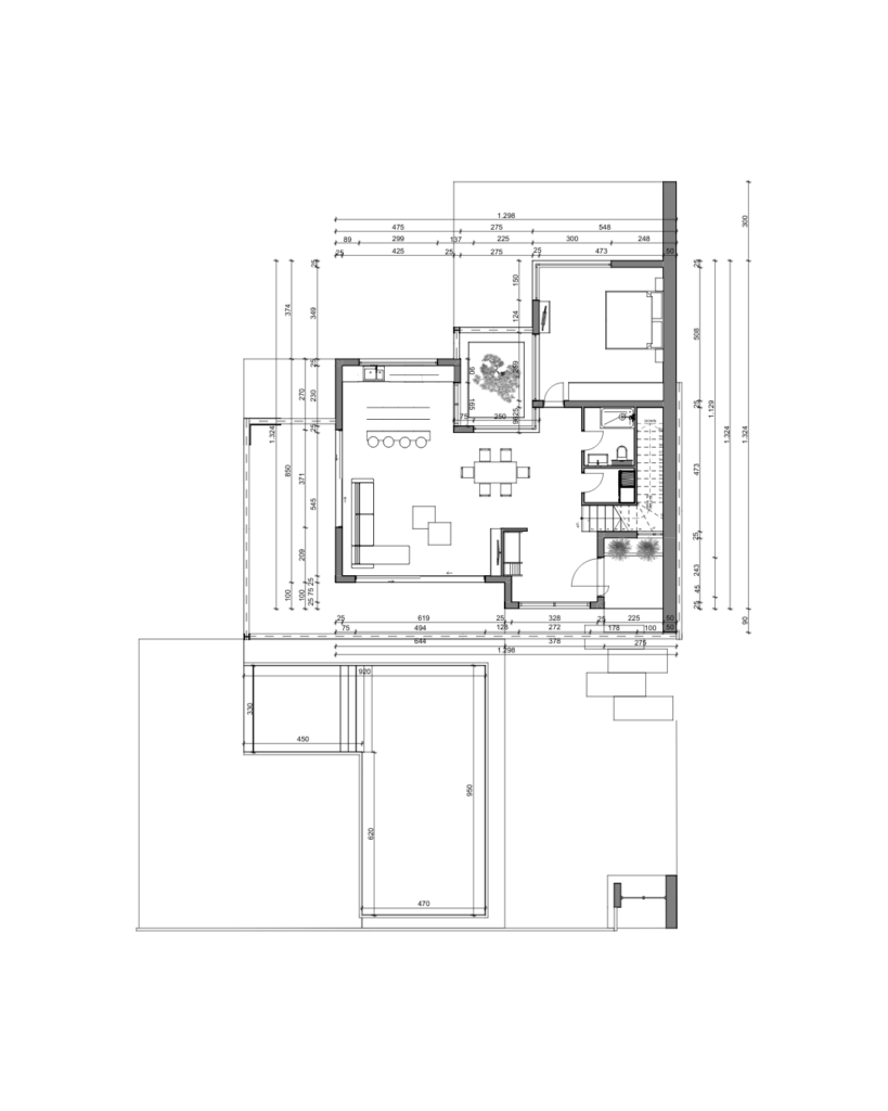
IZRADA TROŠKOVNIKA
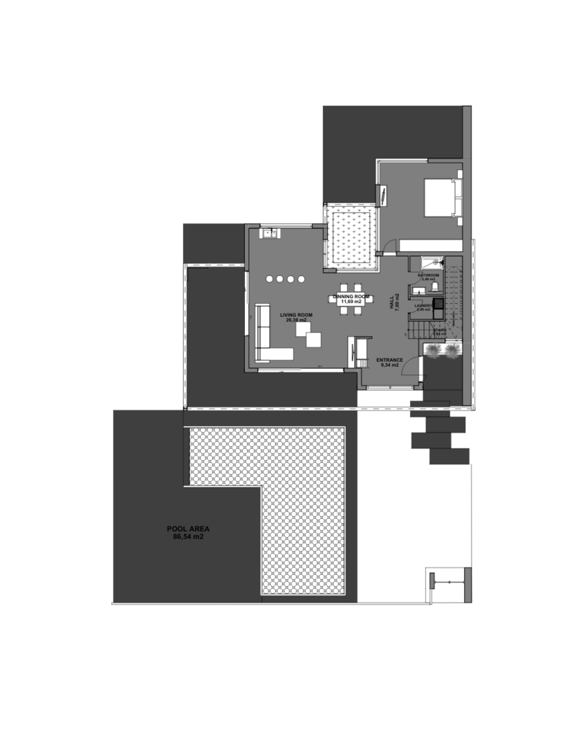
Obuhvaćaju izlazak na teren i mjerenje nekretnine. Tokom mjerenja klijent iznosi svoje želje i potrebe te se određuje smjer projektiranja idejnog tlocrta objekta.
TLOCRTNA RJEŠENJA
Obuhvaćaju izlazak na teren i mjerenje nekretnine. Tokom mjerenja klijent iznosi svoje želje i potrebe te se određuje smjer projektiranja idejnog tlocrta objekta.